Пластина квадратная 100х100х3 мм ст3
Пластина металлическая 100х100х3
| Пластина стальная квадратная 100х100х3 мм. | в наличии | цена от 250 руб/шт. с НДС |
| Пластина стальная квадратная 100х100х3 мм оцинкованная | изготовление 3-5 дней | цена по запросу |
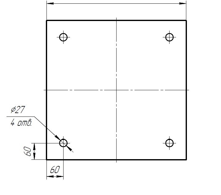
| Пластина стальная квадратная 100х100х3 мм с отверстиями | изготовление 3-5 дней | цена по запросу |
Характеристики:
Изготавливается методом рубки или нарезки на лазерном станке из металлических листов ГОСТ 19903-74, ГОСТ 14637-89.
Размеры: 100х100 мм.
Длина: 100 мм.
Ширина: 100 мм.
Толщина металла: 3,0 мм.
Точность при обработке на лазерном станке:
- Стандартная точность исполнения заготовок - 14 квалитет (H14, h14).
- Шероховатость, плоскостность и серповидность не нормируются.
- Допускается облой (грат) после резки. Облой браковочным признаком не является.
Вес 1 штуки: 0,234 кг.
Материал: (металл), сталь 3пс5/сп5.
Заготовка /полуфабрикат: Лист холоднокатаный 3х1250х2500 мм.
Поверхность: гладкая, без ржавчины, без заусенцев.
Возможные виды наружного покрытия:
- Горячее цинкование.
- Термодиффузионное цинкование.
- Полимерная порошковая покраска.
Где используется? в строительстве, при производстве металлоконструкций.
Возможно производство под заказ. Изготовление по чертежам заказчика.
Доставка до транспортных компаний бесплатно.
Для заказа звоните: тел. +7(495) 268-14-04

